Loading...

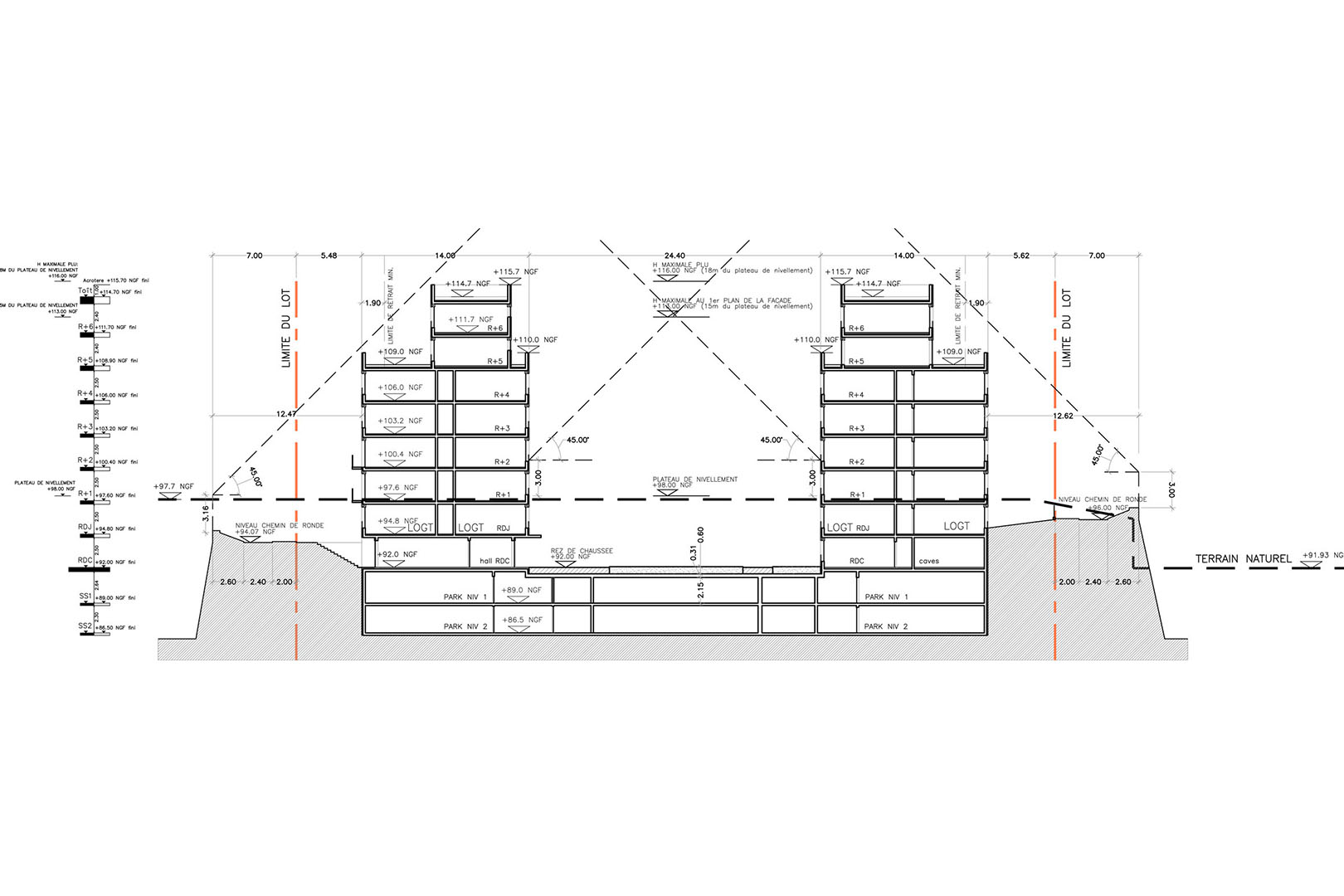
138 LOGEMENTS SOCIAUX
200 PLACES DE PARKING
Issy-les-Moulineaux (92)

Lieu: Issy-les-Moulineaux (92)

Programme: 138 logements sociaux, 200 places de parking

realisation: Livré en 2014

surface : 957 m2 SHON

cout: 12,2 M€ H.T

Certification Qualitel BBC EFFINERGIE & NF logements

maitre d'ouvrage: Bouygues Immobilier - SNI

 précédent  projets suivant 

Contact

Tél
+33 (0)1 42 46 34 26
Adresse
20-22 Rue Richer - 75009 Paris