Loading...

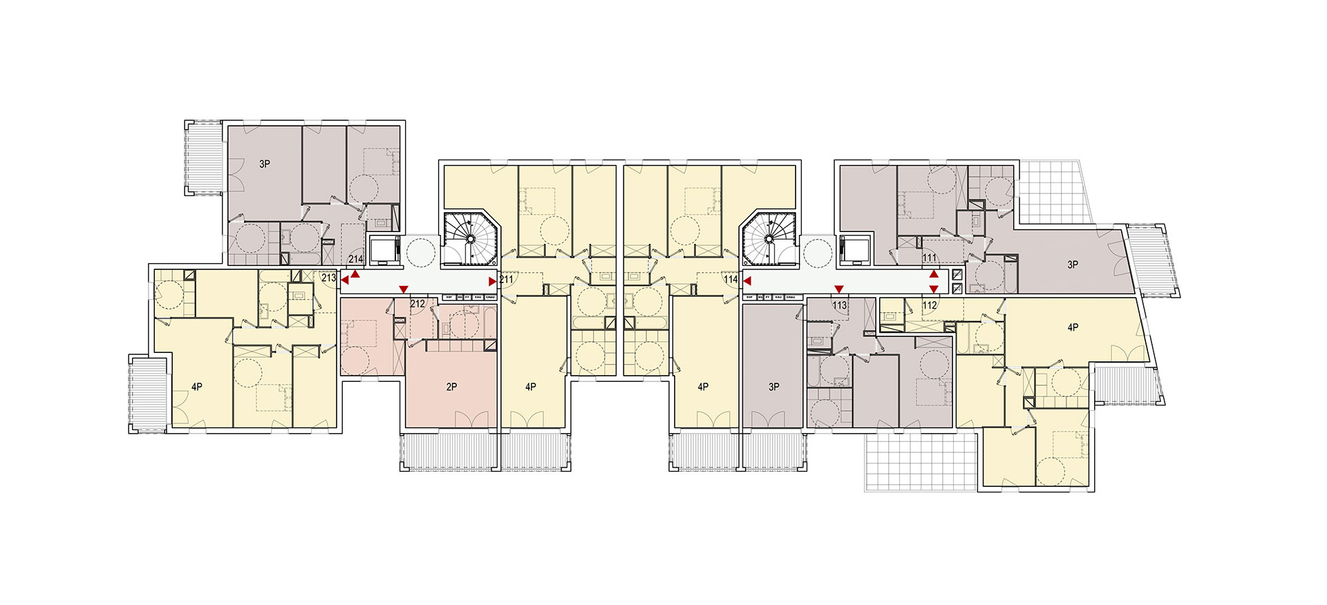
60 LOGEMENTS BBC, COMMERCES ET PARKING SOUS-SOL
Bondy (93)

Lieu: Bondy (93)

Programme: 60 logements sociaux BBC et commerces et parking sous-sol

realisation: Concours Mai 2013

surface: 4500m2 SP

cout:7,1 M€ H.T

BBC - 50 Kwh/m2/an

maitre d'ouvrage: Bondy HABITAT

 précédent  projets suivant 

Contact

Tél
+33 (0)1 42 46 34 26
Adresse
20-22 Rue Richer - 75009 Paris