Loading...

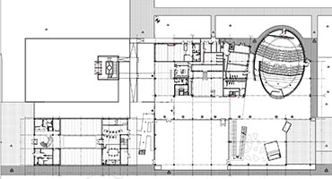
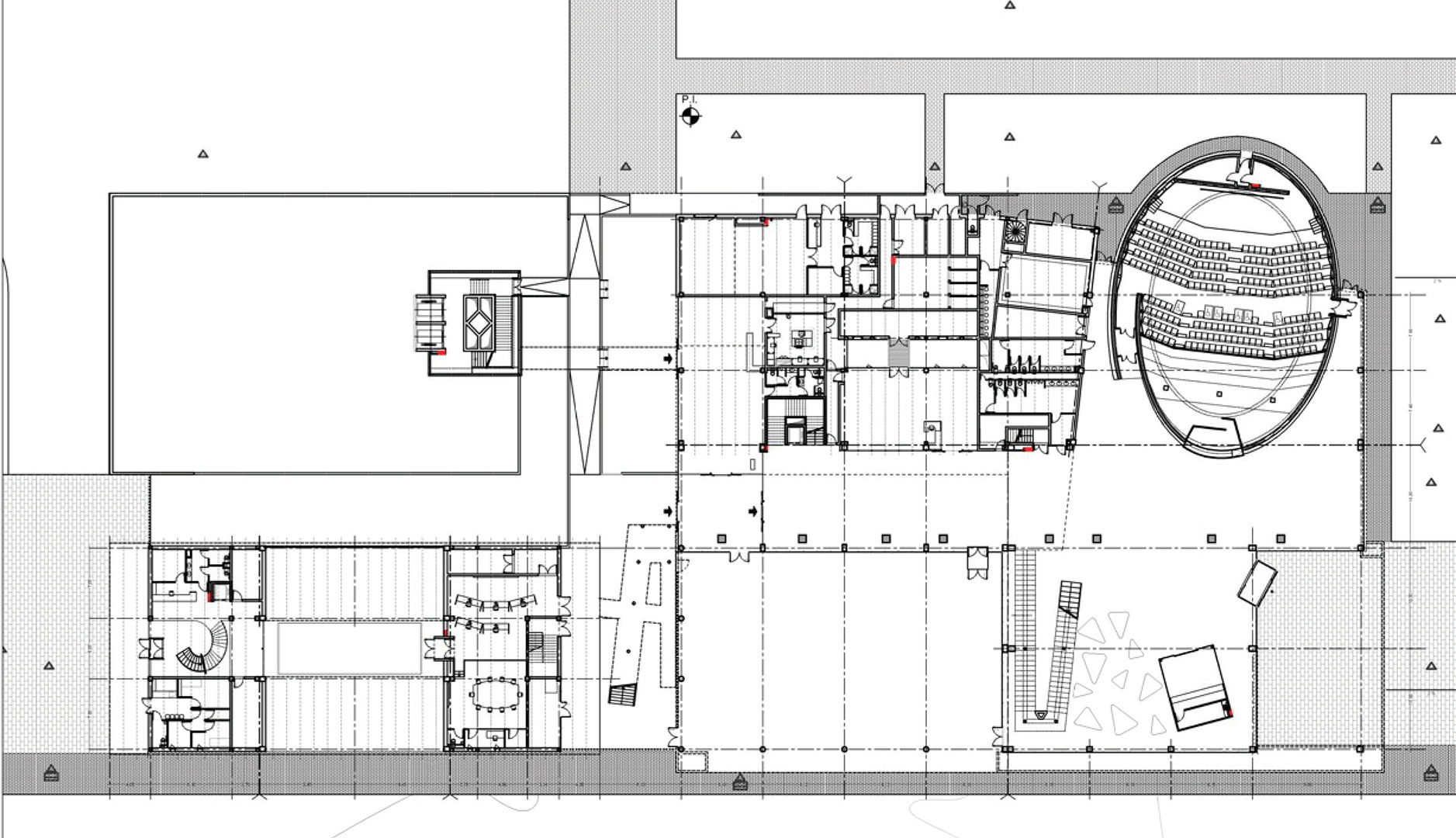
Centre de conférences, médiathèque, bureaux
OUARZAZATE - Maroc

Lieu: OUARZAZATE - Maroc

Programme: Complexe solaire,Centre de conférences, médiathèque, bureaux

realisation: Projet 2018

surface: 5500 M² SHON,

cout: 14 M € HT

maitre d'ouvrage: MASEN - Maroc

 précédent  projets suivant 

Contact

Tél
+33 (0)1 42 46 34 26
Adresse
20-22 Rue Richer - 75009 Paris