Loading...

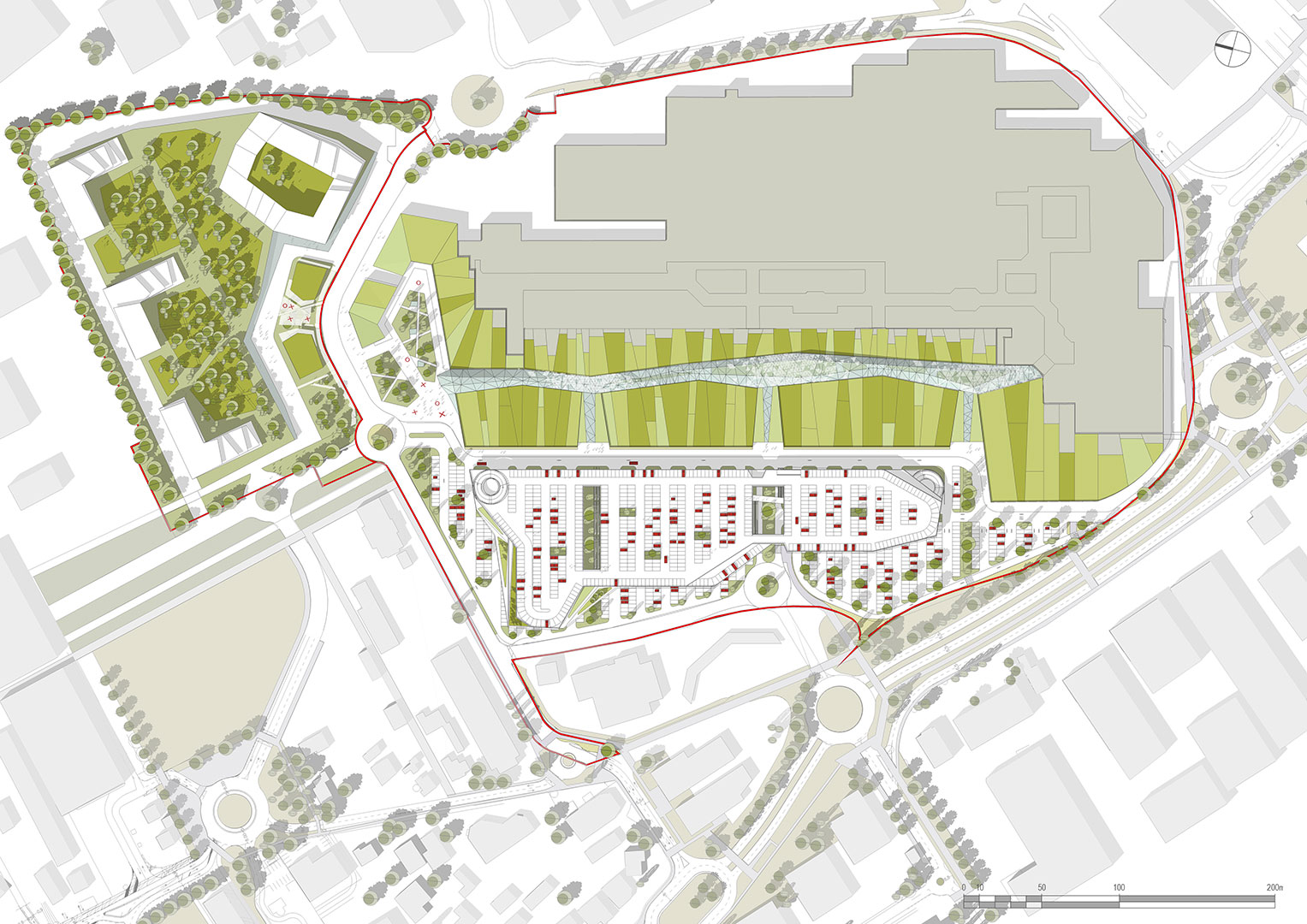
restructuration et extension du centre commercial
portet-sur-garonne

Lieu: portet-sur-garonne

Programme: restructuration et extension du centre commercial grand portet

realisation: concours decembre 2017

surface: 29 000 m² sp dont 5000 m² boutiques, 16 000m² de moyennes surfaces,
et la création d’une zone “food court” d’une dizaine de restaurants de 3 050m²

cout:
NC

maitre d'ouvrage: klepierre

 précédent  projets suivant 

Contact

Tél
+33 (0)1 42 46 34 26
Adresse
20-22 Rue Richer - 75009 Paris